MNS Interruptor de Baja Tensión Retirable

Inicio / Productos / Agua de interruptor de bajo voltaje / MNS Interruptor de Baja Tensión Retirable
MNS Interruptor de Baja Tensión Retirable

MNS Interruptor de Baja Tensión Retirable

La MNS Interruptor de Baja Tensión Retirable es una solución modular y flexible de distribución de energía y control diseñada para sistemas de bajo voltaje.

Ventajas de productos
Estructura modular para la configuración flexible
Las unidades funcionales se pueden reorganizar fácilmente o reemplazarse para cumplir con los requisitos del sistema en evolución. El diseño admite la escalabilidad, acomodando la expansión sin modificación estructural.

Seguridad y confiabilidad operativa
La separación interna entre compartimentos reduce el riesgo de propagación de fallas de arco. Los enclavamientos mecánicos aseguran un funcionamiento seguro, evitando el acceso no autorizado o la operación incorrecta.

Mantenimiento eficiente y tiempo de inactividad reducido
Los módulos retirables se pueden eliminar o reemplazar sin apagar la fuente de alimentación principal. Las unidades estandarizadas simplifican el reemplazo y minimizan el tiempo dedicado a las inspecciones de rutina.

Diseño compacto con alta utilización del espacio
La disposición vertical de los compartimentos optimiza el espacio disponible. La densidad funcional alta permite más circuitos por panel, reduciendo la huella general.

Características del producto
Tecnología de la unidad retirable
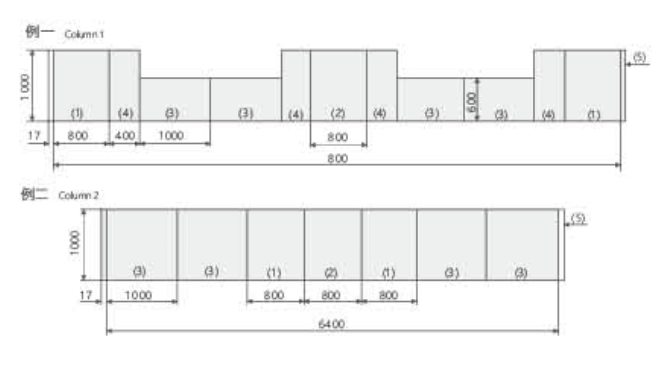
Cada unidad funcional (cajón) está diseñada para ser insertada o retirada individualmente del gabinete principal. Las unidades admiten tres posiciones: conectado, prueba y desconectado, claramente indicado en el panel.

Diseño de compartimento seccionalizado
El interior se divide en compartimentos de la barra bobina, cable y funcional. Esto mejora la seguridad al evitar el contacto eléctrico entre los compartimentos.

Aplicaciones de productos
Plantas industriales
Se utiliza en líneas de procesamiento, instalaciones de fabricación y sistemas de automatización. Asegura la fuente de alimentación estable a motores, PLC y equipos de control.

Instalaciones de generación y distribución de energía
Aplicado en sistemas de energía auxiliares y salas de control. Supporta el control de carga estructurada y la sincronización del generador.

Proyectos de infraestructura
Adecuado para aeropuertos, estaciones de metro y centros de control ferroviario. Aprovecha la protección coordinada para iluminación, HVAC y sistemas críticos.

Edificios comerciales
Integrado en centros de datos, complejos de oficinas y edificios de gran altura. Gestión de iluminación, sistemas de ascensores y controles de potencia de respaldo.

M/①n/②s/③ □/④ □/⑤

Modular
Nuevo tipo
Sistema
Número de esquema de circuito principal
Número de esquema de circuito auxiliar
Rendimiento eléctrico
Voltaje de aislamiento nominal 660V (1000) V
Voltaje de trabajo nominal 380V, 660V
Corriente de trabajo máxima de la barra colectiva principal 5000A
Corriente de resistencia calificada de la barra colectiva principal 100ka/1s
Corriente de resistencia máxima nominal de la barra colectiva principal 220ka/1s
Corriente operativa máxima de la BARRA DE COMO DISTRIBUCIÓN (Barra colectora vertical) 1000A
Corriente máxima de la barra colectiva de distribución (Barra colectiva vertical)
Tipo estándar 105ka/0.1s 105ka (máximo) /0.1s
Mejorado 176ka/0.1s 176ka (máximo) /0.1s

Grado de protección
Cumple con los estándares IEC 529 y DIN 40050
IP30 para protección fija mayor a Ф 2.5MM
IP40 para protección fija mayor a Ф1.0MM
IP54 proporciona protección contra el polvo y las salpicaduras desde cualquier dirección
(Cuando se solicita el nivel de protección IP54, debe negociarse con el fabricante)
IP54 proporciona protección contra el polvo y salpicaduras desde cualquier dirección IP54 защита от ыли и разбрызиваниís relacion
(Al ordenar el nivel de protección IP54, debe negociarse con el fabricante)
(При заказе уровн comput защиты ip54 сле ama

Comentarios de mensajes